chic_evasion

Modèle

Chic évasion

Le plain-pied réinventé

Entouré d’arbres et alliant le luxe, la nature et les activités à proximité, le projet Cité Nature vous propose des modèles de maison aux allures rustiques et sophistiquées.

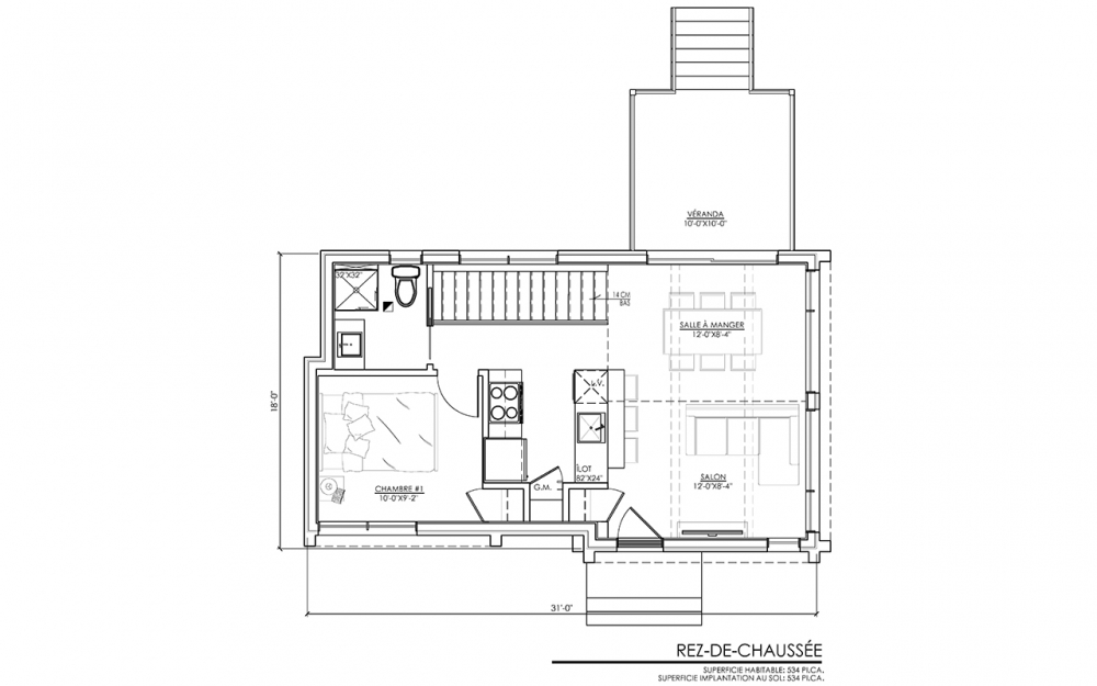
Un plain-pied à notre façon ! Un toit cathédrale de 16 pieds et une fenestration à couper le souffle. Voilà ce qui caractérise notre Chic Évasion. Ce modèle offre deux chambres à coucher, une salle d’eau et une salle de bain complète. Avec un sous-sol aménagé, 1068 pieds carrés sont répartis adroitement, ce qui en fait notre mini maison qui offre le meilleur rapport qualité-prix.

En plus, afin de vous offrir une maison à votre image, Cité Nature met à votre disposition un accompagnement personnalisé avec notre équipe de design. Vous pourrez ainsi choisir les finitions intérieures que vous préférez parmi nos 6 options de matériaux disponibles.

Sans sous-sol >

534 Pieds carrés

À partir de 384 999 $ +taxes

Avec sous-sol >

1068 Pieds carrés

À partir de 424 999 $ +taxes

Plan

chic-plan-1
chic-plan-2

Intérieur

chic-interieur-2
chic-interieur-1

Choisir une autre maison