pure_detente

Modèle

Villa Boisée

Rassembleuse

Entouré d’arbres et alliant le luxe, la nature et les activités à proximité, le projet Cité Nature vous propose des modèles de maison aux allures rustiques et sophistiquées.

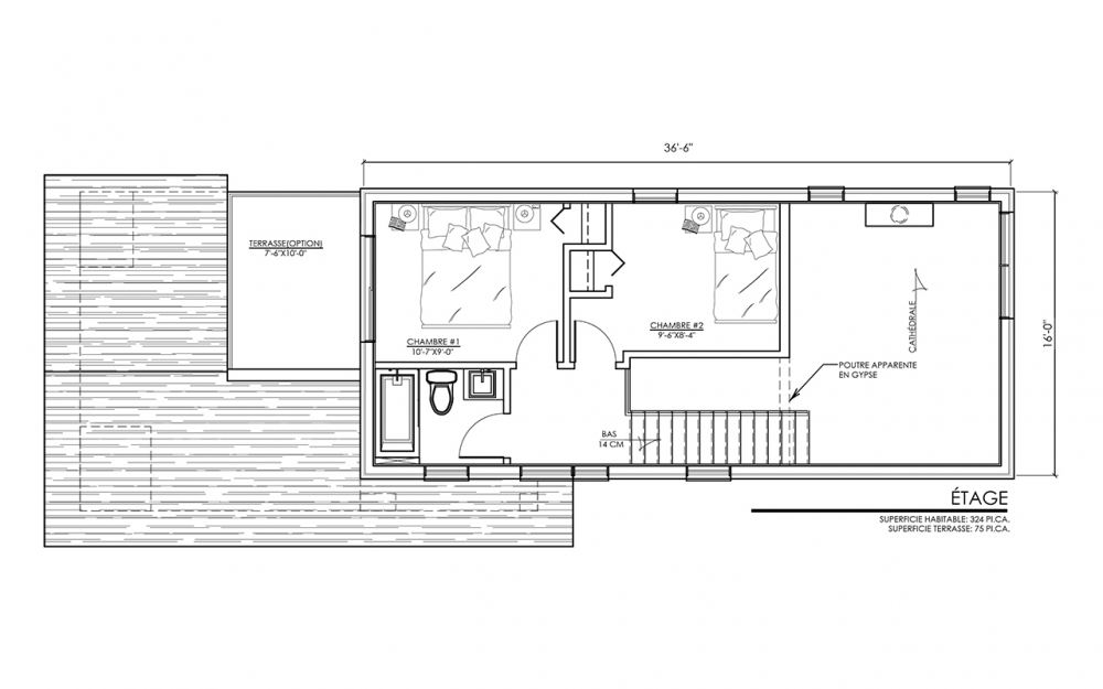
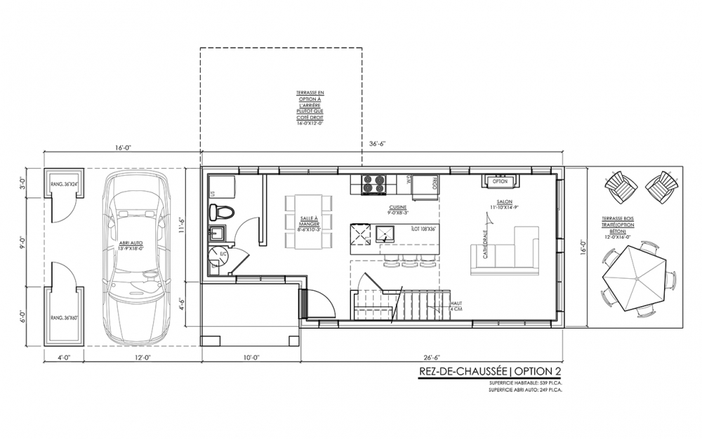
Cette maison vous offre un éventail de possibilités avec ses deux options de terrasse et un abri d'auto pourvu de deux rangements pour vos équipements de plein air. À l'intérieur, le salon possède un volumineux plafond cathédrale, complémentant l'espace de vie rassembleur avec la cuisine centrale où se trouve un grand ilot. À l'étage, deux chambres sont prévues ainsi qu'une salle de bains.

En plus, afin de vous offrir une maison à votre image, Cité Nature met à votre disposition un accompagnement personnalisé avec notre équipe de design. Vous pourrez ainsi choisir les finitions intérieures que vous préférez parmi nos 6 options de matériaux disponibles.

Sans sous-sol >

863 Pieds carrés

À partir de 454 999 $ +taxes

Plan

Havre-plan-1
havre-plan-2

Intérieur

havre-interieur-2
Villa_Boisee2

Choisir une autre maison